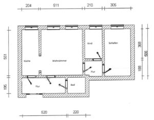
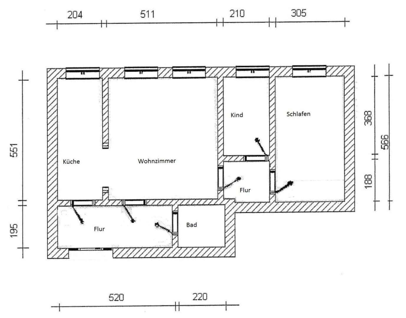
In einem gepflegten Wohnhaus in Frankenberg/Sa. bieten wir diese gemütliche 3-Raum-Wohnung mit einer Gesamtwohnfläche von ca. 85 m² zur Miete an.
Die Wohnung besteht aus einem großzügigen Wohnzimmer mit offener Küche, je einem Schlaf- und Kinderzimmer sowie einem raumhoch gefliesten Bad mit Wanne und WC. Über den Flur aus gelangen Sie in alle Räume der Wohnung. Große Fenster sorgen für viel Helligkeit. Die Bodenbeläge aus Laminat oder Fliesen sind einfach und leicht zu pflegen. Der vorhandene Keller bietet zusätzlichen Stauraum für Ihre Utensilien.
Interessiert? Dann vereinbaren Sie noch heute einen Besichtigungstermin und überzeugen sich selbst von dieser attraktiven Wohnung. Hier können Sie es sich gemütlich machen und die Vorzüge des angenehmen Wohnens in einem kleinen Ort genießen.
Wir freuen uns auf Sie!
